| ID # | 943707 |
| جزئیات ملک | 1 اتاق خواب, 1 حمام, ماشین ظرفشویی, ماشین لباسشویی, تهویه مطبوع, فضای داخلی: 1102 ft2, 102m2 (DOM): 4 days |
| سال ساخت | 1970 |
| هزینه نگهداری | $1,635 |
| تهویه مطبوع | تهویه مرکزی Central Air |
![]() |
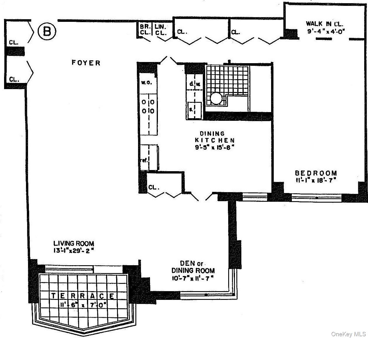
فقط لیست شده! این آپارتمان Jr4 که به تازگی نوسازی شده و دارای Terrasse است، نیازی به تأیید هیئت مدیره ندارد و در مکان پرطرفدار Whitehall واقع شده است. اتاقهای بزرگ، آشپزخانهای برای صرف غذا با وسایل جدید استیل ضد زنگ، ناهارخوری L، کمدهای زیاد از جمله کمد WALK-IN، کفهای جدید، دربهای کمد جدید و تهویه مطبوع مرکزی. نمای شرقی. ارزیابی سرمایهگذاری ماهانه ۲۵۹.۵۷ دلار تا دسامبر ۲۰۲۶. این همکاری کامل خدماتی، دارای دربان ۲۴ ساعته، سرپرست مقیم، اتاق لباسشویی در محل، خشکشویی/خیاط، باشگاه سلامت با استخر سرپوشیده، باشگاه بدنی، کلاسهای ورزشی از انواع مختلف و یک سقف سبز بیرونی با طراحی عالی، شامل آبشار، آلاچیق، کوره آتش، راههای پیادهروی و نشیمنگاههایی برای استراحت میباشد. ماشینهای لباسشویی/خشککنی در آپارتمان مجاز هستند، پارکینگ داخلی موجود است و پذیرای سگها هستیم. Whitehall در مرکز Riverdale واقع شده و به فروشگاهها، رستورانها، حمل و نقل، پارکها، مدارس و مکانهای عبادت نزدیک است. کتابخانه عمومی، زمینهای تنیس و میادین بیس بال در Seton Park در آن طرف خیابان قرار دارند. سفر ۲۵ دقیقهای به NYC از طریق Metro North و ۱۵ دقیقه رانندگی به Midtown Manhattan، این خانه را به مکانی واقعاً خاص در یکی از بهترین ساختمانهای Riverdale تبدیل میکند.
Just Listed! No Board Approval for this newly renovated Jr4 apartment with a terrace at the sought after Whitehall. Large rooms, eat-in kitchen with new stainless steel appliances, dining L, lots of closets including a walk-in, new floors, new closet doors, and central a/c. Eastern views. Monthly capital assessment of $259.57 through December 2026. This full service co-op features a 24-hour doorman, live-in superintendent, on-site laundry room, dry cleaner/tailor, health club with indoor pool, gym, exercise classes of all kinds, and a magnificently designed landscaped outdoor green roof with waterfall, gazebo, fire pit, walking path, and sitting areas for relaxing. Washer/dryers are permitted in the apartment, indoor parking is available, and dogs are welcome. The Whitehall is located in central Riverdale close to shops, restaurants, transportation, parks, schools, and houses of worship. The Public Library, tennis courts and baseball fields at Seton Park are across the street. A 25 minute commute to NYC via Metro North and a 15 minute drive to midtown Manhattan makes this a truly special home in one of Riverdale's premiere buildings. © 2025 OneKey™ MLS, LLC







