| ID # | RLS20045845 |
| جزئیات ملک | 3 اتاق خواب, 3 حمام, ماشین لباسشویی, خشککن لباس, فضای داخلی: 2476 ft2, 230m2 (DOM): 55 days |
| سال ساخت | 2013 |
| مترو | 7 دقیقه: C, E, A |
| 8 دقیقه: L | |
| 9 دقیقه: 1 | |
![]() |
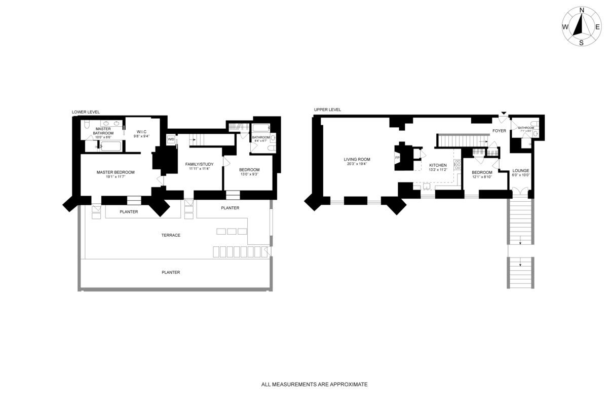
این آپارتمان تاریخی در خیابان 455 غربی 20، با مساحت تقریباً 2500 فوت مربع، باغ 1 یک اقامتگاه بزرگ سهخوابه است. با یک طراحی دوبلکس بسیار دلپذیر که شامل یک آشپزخانه با امکان صرف غذا و یک اتاق مطالعه یا اتاق خانواده دنج در سطح خواب است که به باغ خصوصی وسیع 740 فوت مربعی با نمای جنوبی آپارتمان باز میشود، باغ 1 همچنین با سبک خانه شهری، دسترسی مستقیم و خصوصی از خیابان 20 را دارد. سطح پذیرایی دارای ارتفاع سقف بیش از 10 فوت است و پنجرههای آن که در نور جنوبی غرق شدهاند، با مشبکهای چوبی دستساز که به اوایل قرن نوزدهم برمیگردند و به حالت اصلی خود ترمیم شدهاند، تزئین شدهاند. جزئیاتی مانند قالبهای سنتی تاج، درهای ورودی چوبی روکشدار بلوط با hardware فولادی تیره شده، کفپوشهای بلوط وینتج منتخب که به صورت هارینگبون چیده شدهاند، کمدهای لباس در اتاق پرو لباس مستر، و یک شومینه چوبسوز با مانتلی مجلل در اتاق نشیمن، به آپارتمان کیفیت هنری غیرقابل انکاری میبخشد و با تجهیزات مدرن و سیستمهای ساختمانی پیشرفته، و هر راحتی زندگی مدرن کاندومینیوم تقویت شده است.
This Historical Building apartment at almost 2,500 sq., ft., Garden 1 is a large three- bedroom residence in 455 West 20th Street. With an extremely gracious duplex layout that features an eat-in kitchen, and a cozy study or family room on the bedroom level that opens onto the apartment’s spacious, 740 sq., ft., south-facing private landscaped garden, Garden 1 also featuring Townhouse style boasts direct, private access from 20th Street. The parlor level has ceiling heights of over 10’ ,and its windows, bathed in southern light, are decorated with hand-carved wood traceries dating from the early 19th century, restored to their original condition. Details such as traditional crown moldings, paneled oak entry doors with darkened steel hardware, selected harvest vintage oak floors laid in a herringbone pattern, costume closets in the dressing room of the master bathroom suite, and a wood-burning fireplace with costume mantel in the living room, lend the apartment an unmistakably artisanal quality, enhanced with state-of-the-art appliances and building systems, and every comfort of modern condominium living.
This information is not verified for authenticity or accuracy and is not guaranteed and may not reflect all real estate activity in the market. ©2025 The Real Estate Board of New York, Inc., All rights reserved.







